機械設計 CAD/CAM 機械工業 精密機械 製造機械 加工機械 機械設備業的最強設計圖庫

機械工程CAD製圖王AutoCAD機械工程 機械設計 CAD/CAM 機械工業 精密機械 製造機械 加工機械 機械設備 機械材料

回目錄首頁

機械工程製圖訂單

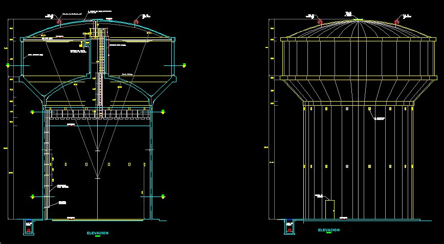
高架水箱

高架水箱高架水箱高架水箱高架水箱高架水箱

機械工程製圖訂單

工業機械設計

工業機械3D

食品工業機械

石油機械設計圖

浮選機 泵細節

螺絲螺紋螺帽

工業鼓風機 工業供水設施 甘蔗處理廠 工業倉儲 烤箱 泵艙 螺絲1
反應爐 工業煙囪 冷凍廠 冷凝器 破碎機 氣動泵 螺絲2
手動碎漿機 分子篩 液體產品分配器 吹嘴 球磨機 消防泵 螺絲3
支撐系統 切割機械 處理平台 固體分離器 鼓帶輸送 浸水泵 螺絲4
平行軸減速機 水切割器 散裝裝載機 油井 熔鐵爐 浮球閥

管道 閥 零件

石油氣缸 存儲機架 飼料切碎機 油泵 橋輸送帶 排水泵站室 PVC管材
沖床 冷卻塔 熏蒸機 油泵機械設備 機械磨篩 渦輪式水鬥 水管元件
卷揚機 抽屜緩衝 機械分子篩 聯合傳輸 礦物沉澱機 飲用水泵 夾具
空氣肺 油壓氣瓶 切割機 焊接平面 皮帶輸送機 機電泵 預應力元件
空氣攪拌機 金屬支架 反應釜 發電機空氣冷卻器 推土機 離心泵 管支撐
垂直操縱機械 金屬絲網機 多用途反應器 煉油廠的原油分隔器 催化塔 污泥閥 閥門
活塞桿 活塞桿 咖啡機 蓄熱鼓 運送磁帶 抽水站 模具設計
風機消聲器 活塞連桿構件 油加工廠 噴嘴詳細大樣 抽水設備 膨脹螺栓
馬達 玻璃反應器 食物清洗機 熱交換器 顎式破碎機

螺釘
蛋加工機器 破碎機 蛋白粉乾燥機 儲存槽細節大樣

車輛機械設計圖

格蘭富泵 覆蓋和閥體

割草機

除塵器 筒倉 化學槽 大卡車 氣動泵 U型螺栓
減速機 馬達 軸承 水分離器 自行車 葛蘭富水泵 大支架
發電機 高爐 運輸輥爐 水平處理機 自卸大卡車 機電泵 全球閥門
軸承 添加器 增稠器 安全閥 挖掘機 壓縮機 金屬支架
軸流風機 減速機 熱風機 雨淋閥 高速斗式提升機 離心泵 排氣管
過濾器 軸承 穀物粉碎機 柴油罐 推高機

起重機設計圖

管道樞紐
滾齒機 裝配機 濃縮器 煉油廠 摩托車發動機 起重機圖 閥門
熱交換器 電氣發動機 輸送帶 箱樑 輪式推土機 起重機3D圖 蝶閥
齒輪組 槓桿機械 輸送機 檢查閥 引擎

水箱儲存桶

調節閥
機械手 銑床廠 麵粉加工區

礦業機械設計圖

氣缸氣動離合器 水庫 機械元件
輸送帶 熱空氣乾燥系統   大型洗滌沉降槽 變速箱 水箱和高架罐 機械減速機
鋸臺 鋁合金切割器   地底卡車

泵機械設計圖

金屬水箱 雙密封閥
鋼結構 銼磨機   多瓣荷花抓斗 水泵 玻璃纖維儲存桶  
壓縮機 導流滑輪   初級破碎機 水泵房 高架水箱  
擺式鋸 機器手臂   軋輥磨床 立式渦輪 飲用水貯罐  
離心式風機 變速風機   垂直凹陷軋機 滅火系統泵房 儲油桶  
攪拌機     穿孔機 抽水站 不銹鋼儲水罐  
鷹架     振動篩 抽水設備 水箱  
鑽床     氣旋機 砂濾罐  
      礦產揚升車 泵工作站 柴油油箱  

機械工程製圖訂單

回目錄首頁

 

包装機械 機械工業 工業機械 機械設計 設計 機械 精密機械 中古機械 機械 中古 製造機械 食品機械 加工 機械 機械加工 機械設備 機械材料 機械工具 自動機械 農業機械 機械技術 木工機械 機械工作 工作機械 機械研究所 印刷機械 機械科 機械安全 機械式 機械学会 cnc機械 重機械 切削機械 米 機械 研磨機械 機械研磨 機械特性 機械力学 建設機械 機械天使 機械構造 水 機械 機械的性質 金属 機械 加工 金属加工機械 冷凍機械 機構 機械 機械機構 振動 機械 機械振動 精密機械加工 機械人形 機械強度

機械工程CAD製圖王AutoCAD機械工程 機械設計 CAD/CAM 機械工業 精密機械 製造機械 加工機械 機械設備 機械材料